

Petition against transit site in St Peters Ward


Petition against transit site in St Peters Ward
The Issue
We are the local people of St Peter's Ward and we are concerned about the plans for OUR local green space.
We are amongst the most disadvantaged and diverse communities in Wolverhampton.
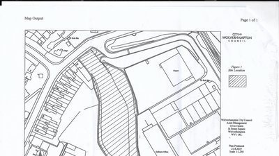
We the undersigned, petition the council to reconsider and to immediately withdraw plans to develop a ‘transit traveller site’ on ‘Gorsebrook Road’ following a number of concerns that have been raised by local residents and businesses . Some of these concerns include and are not limited to:
- Concreting of the proposed site/removal of green space/matured trees
- Environmental damage to Wildlife
- Increased traffic on a very busy residential road

The Issue
We are the local people of St Peter's Ward and we are concerned about the plans for OUR local green space.
We are amongst the most disadvantaged and diverse communities in Wolverhampton.
We the undersigned, petition the council to reconsider and to immediately withdraw plans to develop a ‘transit traveller site’ on ‘Gorsebrook Road’ following a number of concerns that have been raised by local residents and businesses . Some of these concerns include and are not limited to:
- Concreting of the proposed site/removal of green space/matured trees
- Environmental damage to Wildlife
- Increased traffic on a very busy residential road

Petition Closed
Share this petition
Petition Updates
Share this petition
Petition created on 2 October 2019