

Stop DR Horton from building 286 houses on Owens Rd and Flatrock Rd


Stop DR Horton from building 286 houses on Owens Rd and Flatrock Rd
The Issue
UPDATE November 21, 2025 — County Council Sends Owens Glen Back to Planning Commission — Next Hearing Dec. 17th
Great news — and an important next step.
County Council voted YES to send the Owens Glen plan back to the Planning Commission. The reconsideration hearing is scheduled for:
📅 December 17, 2025
⏰ 4:30 PM
📍 County Square – Committee Meeting Room
This happened because Council recognized that the developer has been trying to move forward using the wrongfully approved 2024 plan — a plan that never followed the Comprehensive Plan, the Piedmont Area Plan, or state planning standards. That approval should never have been used to justify this subdivision, and Council’s vote puts that issue back where it belongs: in front of the Planning Commission for a full, lawful review.
Now we need the community again:
✔️ Show up on Dec. 17 th - WEAR RED
Please plan to arrive by 4:00 PM so we fill the room. Your presence is one of the strongest messages we can send.
✔️ Email & call your County Council representatives and Planning Commission members.
Remind them: unsafe roads, incompatible density, and a plan that violates both the Comprehensive Plan and the Piedmont Plan cannot move forward.
✔️ Share this update with neighbors, friends, and community groups. Attendance matters.
Because of your voices — nearly 1,000 strong — we are here. Let’s finish what we started and protect rural Piedmont.
UPDATE 6/10/2025
Piedmont, SC
Owens Glen is back for the third time. File number 2025-106. A neighbor has agreed to an easement that will allow the development of this subdivision if it makes it through County approvals.
We need you NOW. Email the County and let them know you oppose this development. Reference file number 2025-106. Meetings are as follows:
Subdivision Administration: June 16th (Public cannot speak but can listen in person or listen online)
Planning Commission: July 23rd (Public can speak - 10 min max for all speakers)
Email Planning Commission and County Council. If you need email addresses please contact KeepPiedmontRural@gmail.com.
Proposed maps and information can be found on the Greenville County website:
https://www.greenvillecounty.org/apps/subdivisionsearch/Default.aspx
Search file # 2025-106
Piedmont, SC
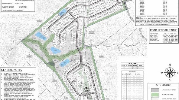
We are back to ask for your support to stop DR Horton from building 286 homes on Owens Rd and Flat Rock Road in Piedmont, SC. Last year, 256 of you signed our petition in less than 2 weeks and our voices were heard but not loud enough.
We have a second chance!
Let Greenville County know that the citizens of Piedmont do NOT want 288 homes on Owens Rd. and Flatrock Rd. Sign this petition AND voice your opposition to Greenville County Planning Commission, Subdivision Administration and County Council. Stay up to date with County meeting dates by joining the ‘Homeowners Against Owens Glen’ facebook group.
You can also voice your opposition by emailing the county - reference applications 2024-109 AND 2025-017, Owens Glen : Inquiry@GreenvilleCounty.org; subdivisioninquiry@greenvillecounty.org; publiccomments@greenvillecounty.org; rbradley@greenvillecounty.org; efant@greenvillecounty.org
Ask Greenville County to support its own Comprehensive Plan which designates our area as 'Rural Living' and recommends only 1 home per 2 ac. NOT 2.5 homes per acre as proposed by DR Horton.
If any of you have driven Owens Rd and Flat Rock Roads, you know that they cannot handle the traffic that will be generated from 288 homes. There are no turn lanes, no road shoulders and sharp curves.
Owens Rd and Flat Rock Road are home to old family homesteads, hobby farms and an abundance of wildlife. These characteristics are why it is designated as 'Rural Living' and Land use 'Agriculture' - Greenville County created these designations for a reason and Greenville County needs to be held accountable to uphold the long-term goals of its Comprehensive Plan.
SC Law 6-31-70 - “A development agreement and authorized development must be consistent with the local government's comprehensive plan and land development regulations.”
Let Greenville County know that YOU want them to deny the Owens Glen development by signing this petition today!
Thank you all for your support!
Email inquiries can be sent to KeepPiedmontRural@gmail.com
Victory
The Issue
UPDATE November 21, 2025 — County Council Sends Owens Glen Back to Planning Commission — Next Hearing Dec. 17th
Great news — and an important next step.
County Council voted YES to send the Owens Glen plan back to the Planning Commission. The reconsideration hearing is scheduled for:
📅 December 17, 2025
⏰ 4:30 PM
📍 County Square – Committee Meeting Room
This happened because Council recognized that the developer has been trying to move forward using the wrongfully approved 2024 plan — a plan that never followed the Comprehensive Plan, the Piedmont Area Plan, or state planning standards. That approval should never have been used to justify this subdivision, and Council’s vote puts that issue back where it belongs: in front of the Planning Commission for a full, lawful review.
Now we need the community again:
✔️ Show up on Dec. 17 th - WEAR RED
Please plan to arrive by 4:00 PM so we fill the room. Your presence is one of the strongest messages we can send.
✔️ Email & call your County Council representatives and Planning Commission members.
Remind them: unsafe roads, incompatible density, and a plan that violates both the Comprehensive Plan and the Piedmont Plan cannot move forward.
✔️ Share this update with neighbors, friends, and community groups. Attendance matters.
Because of your voices — nearly 1,000 strong — we are here. Let’s finish what we started and protect rural Piedmont.
UPDATE 6/10/2025
Piedmont, SC
Owens Glen is back for the third time. File number 2025-106. A neighbor has agreed to an easement that will allow the development of this subdivision if it makes it through County approvals.
We need you NOW. Email the County and let them know you oppose this development. Reference file number 2025-106. Meetings are as follows:
Subdivision Administration: June 16th (Public cannot speak but can listen in person or listen online)
Planning Commission: July 23rd (Public can speak - 10 min max for all speakers)
Email Planning Commission and County Council. If you need email addresses please contact KeepPiedmontRural@gmail.com.
Proposed maps and information can be found on the Greenville County website:
https://www.greenvillecounty.org/apps/subdivisionsearch/Default.aspx
Search file # 2025-106
Piedmont, SC
We are back to ask for your support to stop DR Horton from building 286 homes on Owens Rd and Flat Rock Road in Piedmont, SC. Last year, 256 of you signed our petition in less than 2 weeks and our voices were heard but not loud enough.
We have a second chance!
Let Greenville County know that the citizens of Piedmont do NOT want 288 homes on Owens Rd. and Flatrock Rd. Sign this petition AND voice your opposition to Greenville County Planning Commission, Subdivision Administration and County Council. Stay up to date with County meeting dates by joining the ‘Homeowners Against Owens Glen’ facebook group.
You can also voice your opposition by emailing the county - reference applications 2024-109 AND 2025-017, Owens Glen : Inquiry@GreenvilleCounty.org; subdivisioninquiry@greenvillecounty.org; publiccomments@greenvillecounty.org; rbradley@greenvillecounty.org; efant@greenvillecounty.org
Ask Greenville County to support its own Comprehensive Plan which designates our area as 'Rural Living' and recommends only 1 home per 2 ac. NOT 2.5 homes per acre as proposed by DR Horton.
If any of you have driven Owens Rd and Flat Rock Roads, you know that they cannot handle the traffic that will be generated from 288 homes. There are no turn lanes, no road shoulders and sharp curves.
Owens Rd and Flat Rock Road are home to old family homesteads, hobby farms and an abundance of wildlife. These characteristics are why it is designated as 'Rural Living' and Land use 'Agriculture' - Greenville County created these designations for a reason and Greenville County needs to be held accountable to uphold the long-term goals of its Comprehensive Plan.
SC Law 6-31-70 - “A development agreement and authorized development must be consistent with the local government's comprehensive plan and land development regulations.”
Let Greenville County know that YOU want them to deny the Owens Glen development by signing this petition today!
Thank you all for your support!
Email inquiries can be sent to KeepPiedmontRural@gmail.com
Victory
Share this petition
The Decision Makers
Supporter Voices
Petition Updates
Share this petition
Petition created on March 3, 2025