Please Help Save Our Wildlife Sanctuary


Please Help Save Our Wildlife Sanctuary
The Issue
We, the undersigned, want Bristol City Council to protect the covenant on the Land To Rear Of Marksbury Road Bristol BS3 5LD as stated by Bristol City Council’s property manager Ceri Thomas on 5th July 2017 so that it is not built on.
“The land is to be sold with a restrictive covenant placed on it against any development except any building in connection with a garden or amenity use such as sheds etc.”
This land was sold for agricultural use only with a covenant on it saying so!
So why on earth is this person even able to apply for planning?!
The many locals who's gardens back onto the land have been totally mislead, if they'd had any inkling that the land was not protected and that the protective covenant could in any way be lifted, then they would most certainly have got together and applied to buy the land between themselves!
This land and the tree’s living on and around it have been a wildlife sanctuary for (red-listed) Badgers, Fox's, Hedgehogs, Squirrels and many different varieties of Birds, some also (red-listed) for a very long time now!
An old couple have had many sightings of badgers and fox's living on the land over the last 40 years, their house backs onto the land, last year they saw both a family of badgers, and a family of fox's too, all living on there, they have had more recent sightings of them too!
But disgustingly and extremely sadly, the new land owner, before any ecology report, or planning, without any thought to the animals and birds living there, or the trees etc, went ahead and bulldozed the land, destroying their habitat, so whether or not the huge pile of cleared rubbish that he left in the middle of the land is now blocking up a badger set and or a fox's den, we dread to think :/
Obviously this person is just out to make money and cares nothing for wildlife and the environment :/
What this precious land so desperately needs is to be allowed to return to and stay the treasured wildlife sanctuary / corridor that it is, with more tree's planted and for it to be in the hands of our caring community and the deserving families who's gardens back onto it :)
There have been so many / far too many builds in this area over the last few years, which means that these treasured pieces of wildlife sanctuary / corridor land are now sadly very fast depleting and extremely scarce, the badgers, fox's and other wildlife are all really struggling to survive :/
This land is definitely waterlogged, it is prone to flooding, any build there would put the houses that are already there in jeopardy of flood and subsidence!
Even a flood risk assessment says the land is at risk of flooding, and there is plenty of proof in the reports and pictures of the flooding in this area in the past!
There are already so many houses / homes packed into this very small area, this build would lead to more poor air quality in an already polluted area, more noise pollution, more parking issues, and more destruction of green land :/
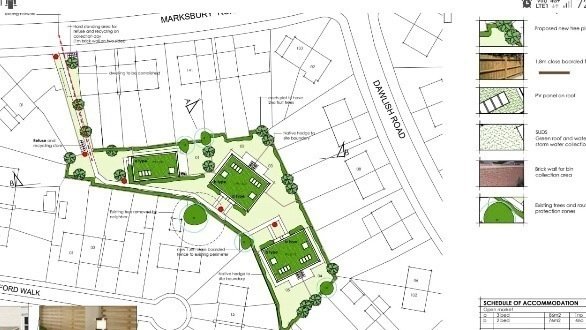
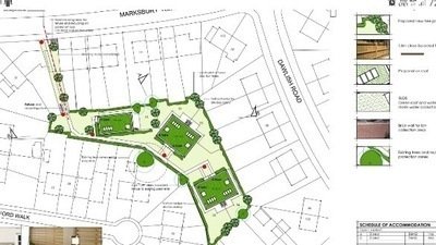
Even one house / dwelling built there let alone five, would negatively impact in a massive way both physically and mentally on over a hundred people and their families that already live there, their houses would be devalued, the build demolition, dust pollution and noise for the proposed 5 single story dwellings, would go on for a long time, let alone the upset and possible deaths of the wildlife that rely on the space to live in / on too :/
This planning application goes to the planning committee on April 6th 2022, sadly it’s looking like the planning officer is for the build, despite the many completely justified oppositions, so we only have a week :/
So please sign and share this petition as far and wide as you can, or even add an opposition comment to the planning, to help us very concerned local Bristolians stop this farcical planning application!
We thank you for your time in reading this and your help in taking the time to sign and share it :)

The Issue
We, the undersigned, want Bristol City Council to protect the covenant on the Land To Rear Of Marksbury Road Bristol BS3 5LD as stated by Bristol City Council’s property manager Ceri Thomas on 5th July 2017 so that it is not built on.
“The land is to be sold with a restrictive covenant placed on it against any development except any building in connection with a garden or amenity use such as sheds etc.”
This land was sold for agricultural use only with a covenant on it saying so!
So why on earth is this person even able to apply for planning?!
The many locals who's gardens back onto the land have been totally mislead, if they'd had any inkling that the land was not protected and that the protective covenant could in any way be lifted, then they would most certainly have got together and applied to buy the land between themselves!
This land and the tree’s living on and around it have been a wildlife sanctuary for (red-listed) Badgers, Fox's, Hedgehogs, Squirrels and many different varieties of Birds, some also (red-listed) for a very long time now!
An old couple have had many sightings of badgers and fox's living on the land over the last 40 years, their house backs onto the land, last year they saw both a family of badgers, and a family of fox's too, all living on there, they have had more recent sightings of them too!
But disgustingly and extremely sadly, the new land owner, before any ecology report, or planning, without any thought to the animals and birds living there, or the trees etc, went ahead and bulldozed the land, destroying their habitat, so whether or not the huge pile of cleared rubbish that he left in the middle of the land is now blocking up a badger set and or a fox's den, we dread to think :/
Obviously this person is just out to make money and cares nothing for wildlife and the environment :/
What this precious land so desperately needs is to be allowed to return to and stay the treasured wildlife sanctuary / corridor that it is, with more tree's planted and for it to be in the hands of our caring community and the deserving families who's gardens back onto it :)
There have been so many / far too many builds in this area over the last few years, which means that these treasured pieces of wildlife sanctuary / corridor land are now sadly very fast depleting and extremely scarce, the badgers, fox's and other wildlife are all really struggling to survive :/
This land is definitely waterlogged, it is prone to flooding, any build there would put the houses that are already there in jeopardy of flood and subsidence!
Even a flood risk assessment says the land is at risk of flooding, and there is plenty of proof in the reports and pictures of the flooding in this area in the past!
There are already so many houses / homes packed into this very small area, this build would lead to more poor air quality in an already polluted area, more noise pollution, more parking issues, and more destruction of green land :/
Even one house / dwelling built there let alone five, would negatively impact in a massive way both physically and mentally on over a hundred people and their families that already live there, their houses would be devalued, the build demolition, dust pollution and noise for the proposed 5 single story dwellings, would go on for a long time, let alone the upset and possible deaths of the wildlife that rely on the space to live in / on too :/
This planning application goes to the planning committee on April 6th 2022, sadly it’s looking like the planning officer is for the build, despite the many completely justified oppositions, so we only have a week :/
So please sign and share this petition as far and wide as you can, or even add an opposition comment to the planning, to help us very concerned local Bristolians stop this farcical planning application!
We thank you for your time in reading this and your help in taking the time to sign and share it :)

Petition Closed
Share this petition
Petition Updates
Share this petition
Petition created on 30 March 2022