

Support for Open Space, Climate Resiliency, & Affordable Housing at 104-108 Walter Street


Support for Open Space, Climate Resiliency, & Affordable Housing at 104-108 Walter Street
The Issue
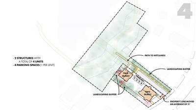
The support of our city and state officials is vital to help our community realize our grassroots vision for the future of 104-108 Walter Street in Roslindale. This project will preserve public open space in the Roslindale Wetlands for climate resiliency and create four units of affordable homeownership housing to advance equity and inclusion in our neighborhood.
Community involvement to date has been enthusiastic and extensive. Our neighborhood has organized and advocated for the Roslindale Wetlands Urban Wild for nearly 20 years and brought hundreds of residents into our work. Over the last eight months, a group of neighbors have met weekly, led numerous site walks, and facilitated two very well-attended community workshops to create this affordable housing and open space conservation site plan.
Thank you for honoring the comprehensive public process which produced this community- and abutter-supported site plan, and for working with us to realize our goals of sustainability, equity, and inclusion.

The Issue
The support of our city and state officials is vital to help our community realize our grassroots vision for the future of 104-108 Walter Street in Roslindale. This project will preserve public open space in the Roslindale Wetlands for climate resiliency and create four units of affordable homeownership housing to advance equity and inclusion in our neighborhood.
Community involvement to date has been enthusiastic and extensive. Our neighborhood has organized and advocated for the Roslindale Wetlands Urban Wild for nearly 20 years and brought hundreds of residents into our work. Over the last eight months, a group of neighbors have met weekly, led numerous site walks, and facilitated two very well-attended community workshops to create this affordable housing and open space conservation site plan.
Thank you for honoring the comprehensive public process which produced this community- and abutter-supported site plan, and for working with us to realize our goals of sustainability, equity, and inclusion.

Petition Closed
Share this petition
The Decision Makers
Petition Updates
Share this petition
Petition created on November 9, 2020