Facts Before Fences! Meet with Penn Wynne residents to explain your reasons and plan for fencing Penn Wynne Elementary School!


Facts Before Fences! Meet with Penn Wynne residents to explain your reasons and plan for fencing Penn Wynne Elementary School!
The Issue
Penn Wynne Elementary School sits in the middle of our community, and the location, size and openness of the property have allowed it to serve as the de facto Village Green of Penn Wynne for more than 80 years.
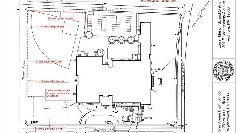
The administration of the Lower Merion School District is now proposing to fence in the Penn Wynne Elementary School property based on the recommendations of a School Safety Task Force report that has not been released to the public. The community does not know what risks to student safety and security were evaluated by the task force. Without a comprehensive risk analysis, we cannot determine whether the proposed four-foot high, chain link fence is adequate, insufficient, unnecessary or perhaps even dangerous. It is also unclear what, if any, alternatives to a fence were considered by the task force or why these alternatives were rejected. Finally, the administration has never organized nor participated in any public meeting in Penn Wynne to present this fencing proposal to the community and solicit public feedback.
We, the undersigned, hereby petition the Lower Merion School District Administration and Board of Directors to suspend all action on enclosure of the Penn Wynne Elementary School property until a public meeting can be arranged in Penn Wynne where Lower Merion School District officials present their rationale, objectives and specific plan for fencing the property, assess threats that may be mitigated or aggravated by the existence of a fence, evaluate less intrusive alternatives for achieving their objectives and discuss student security with the public in the context of much more significant student and community pedestrian and traffic safety issues surrounding Penn Wynne Elementary School, such as the lack of sidewalks, which may be exacerbated by fencing the property.

The Issue
Penn Wynne Elementary School sits in the middle of our community, and the location, size and openness of the property have allowed it to serve as the de facto Village Green of Penn Wynne for more than 80 years.
The administration of the Lower Merion School District is now proposing to fence in the Penn Wynne Elementary School property based on the recommendations of a School Safety Task Force report that has not been released to the public. The community does not know what risks to student safety and security were evaluated by the task force. Without a comprehensive risk analysis, we cannot determine whether the proposed four-foot high, chain link fence is adequate, insufficient, unnecessary or perhaps even dangerous. It is also unclear what, if any, alternatives to a fence were considered by the task force or why these alternatives were rejected. Finally, the administration has never organized nor participated in any public meeting in Penn Wynne to present this fencing proposal to the community and solicit public feedback.
We, the undersigned, hereby petition the Lower Merion School District Administration and Board of Directors to suspend all action on enclosure of the Penn Wynne Elementary School property until a public meeting can be arranged in Penn Wynne where Lower Merion School District officials present their rationale, objectives and specific plan for fencing the property, assess threats that may be mitigated or aggravated by the existence of a fence, evaluate less intrusive alternatives for achieving their objectives and discuss student security with the public in the context of much more significant student and community pedestrian and traffic safety issues surrounding Penn Wynne Elementary School, such as the lack of sidewalks, which may be exacerbated by fencing the property.

Petition Closed
Share this petition
The Decision Makers
Petition Updates
Share this petition
Petition created on November 8, 2014