Stop The Killian Park Development at SW 112th ST and US1


Stop The Killian Park Development at SW 112th ST and US1
The Issue
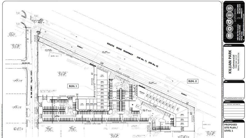
MV Group, led by Mr. Manny Varas, has proposed to build a new town hall center on a tract of land at the corner of SW 112th ST and US1. This development, at present (based on site plan), would provide for the building of two large commercial buildings, composed of one restaurant, two food & beverage options, and the remaining 24 retail designated spaces. It would entail building hundreds of parking spaces.
This intersection is already problematic and frequently backs up. Mr. Varas claims that problem could be remedied by adding an extended right turn lane and possibly extending the traffic light interval by 3 seconds. However he fails to adequately account for the fact that this development will attract perhaps thousands of additional cars to those hundreds of parking spaces - thus taking 1 step forward and 2 steps back.
Mr. Varas also claims to have contacted many neighbors in the direct vicinity of the proposed development, including ROIG Academy, and that their responses were positive and approving. However there would seem to be a disparity here as the vast majority of comments regarding this project on the Nextdoor forum are negative and completely opposed. Many residents closest to the project claim not to have been consulted, merely added to a contact list at most, and ROIG Academy has apparently received only very one-sided communications.
We believe the needs of those residents are already more-than-adequately served by Dadeland and The Falls, and that this new development would prove to be nothing more than a traffic nightmare. We do not believe it would improve the majority lives of those living either West or East of US1.
We the undersigned petition the Miami Dade County Commissioners to stop this flawed, unnecessary, and most importantly unwanted development.
1,402
The Issue
MV Group, led by Mr. Manny Varas, has proposed to build a new town hall center on a tract of land at the corner of SW 112th ST and US1. This development, at present (based on site plan), would provide for the building of two large commercial buildings, composed of one restaurant, two food & beverage options, and the remaining 24 retail designated spaces. It would entail building hundreds of parking spaces.
This intersection is already problematic and frequently backs up. Mr. Varas claims that problem could be remedied by adding an extended right turn lane and possibly extending the traffic light interval by 3 seconds. However he fails to adequately account for the fact that this development will attract perhaps thousands of additional cars to those hundreds of parking spaces - thus taking 1 step forward and 2 steps back.
Mr. Varas also claims to have contacted many neighbors in the direct vicinity of the proposed development, including ROIG Academy, and that their responses were positive and approving. However there would seem to be a disparity here as the vast majority of comments regarding this project on the Nextdoor forum are negative and completely opposed. Many residents closest to the project claim not to have been consulted, merely added to a contact list at most, and ROIG Academy has apparently received only very one-sided communications.
We believe the needs of those residents are already more-than-adequately served by Dadeland and The Falls, and that this new development would prove to be nothing more than a traffic nightmare. We do not believe it would improve the majority lives of those living either West or East of US1.
We the undersigned petition the Miami Dade County Commissioners to stop this flawed, unnecessary, and most importantly unwanted development.
1,402
The Decision Makers
Petition Updates
Share this petition
Petition created on April 21, 2020